NEW
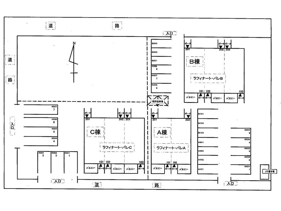
ラフィナート・パレB 101
5.25万円
管理 / 共益費 2,200円
常磐線「土浦」駅バス10分「おおつ野6丁目」停歩3分
常磐線「神立」駅徒歩60分
常磐線「高浜」駅徒歩252分
物件の特徴
-
バストイレ別
-
室内洗濯機置場
-
TVモニタ付きインターホン
-
カウンターキッチン
-
独立洗面台
-
浴室乾燥機
-
ネット使用料無料
-
家具・家電付き
セールスポイント
◎対象物件成約で最大賃料の10%ポイントプレゼント2/28迄
パノラマ画像

キッチン
基本情報
- 保証金
- -
- 敷引 / 償却
- - / -
- 敷金積み増し
- -
- 間取り / 詳細
- 1LDK
洋室 6.1帖/LDK 12.8帖
洋6.1・LDK12.8
- 向き
- 南
- 専有面積
- 46.03㎡
- バルコニー
(テラス)面積 - -
- 所在階 / 階建て
- 1階 / 2階建
- 建物構造
- 木造
- 築年月
- 2006年1月(築19年)
- 種別
- アパート
- 保険会社 / 料金
- 有 / -
- 保証会社 / 料金
- 必加入 / ハウスリーブ
個人名義での契約は保証会社原則加入(ハウスリーブ株式会社) 保証会社原則加入 保証委託料 契約時:22,000円 月額:賃料総額の2.2%又は5.5%必要。 月額保証委託料:1,288円 (駐車場1台、2.2%プランの場合)
- 駐車場
- 空有 3,300円
- 現況
- 賃貸中
- 入居可能時期
- 2025年12月中旬予定
- その他条件
- 鍵交換代:3,300円 室内清掃費用:6万円 町内会費:250円(月額) 収納手数料:170円(月額) 24時間サポート費用:330円(月額) 礼金0
設備条件
- 設備条件
-
- 保証人不要 / 室内洗濯機置場 / フローリング / バルコニー / プロパンガス / 照明器具付き / 家具・家電付き / カウンターキッチン / バス・トイレ別 / 追焚機能浴室 / 浴室乾燥機 / 温水洗浄便座 / シャワー / 独立洗面台 / 床下収納 / ネット使用料無料 / TVモニタ付インターホン / 防犯カメラ / エアコン2台 / 角部屋
- 設備(その他)
-
-
セキュリティキー、24時間管理、LGBTQフレンドリー
その他
- 契約期間
- 2年
- 賃貸区分
- 一般
- 更新料
- -
- 更新事務手数料
- 2.2万円
- 総戸数
- -
- 特優賃
- -
- 取引態様
- 一般媒介
- 物件番号
- 83461555
- 管理コード
- -
- 情報更新日
- 2025年12月07日
- 次回更新予定日
- 2025年12月14日
- 取扱会社
-
- アパートマンション館株式会社 龍ヶ崎店
- 茨城県龍ケ崎市藤ケ丘3丁目1-8
- TEL:0297-60-7100
- 国土交通大臣 (6) 第5966号
- 備考
- オンライン内見実施中!
ラフィナート・パレBの他の部屋
周辺施設
-
総合病院
総合病院土浦協同病院
572m(8分)
-
その他
ONEWAY GOLF CLUB
1579m(20分)
-
中学校
土浦市立土浦第五中学校
2557m(32分)
-
寺院・神社
羽黒神社
3804m(48分)
-
その他
ホテルアルファ・ザ・土浦
5238m(66分)
-
ショッピングセンター
木田余ショッピングモール
5297m(67分)
-
公園
川口運動公園
5406m(68分)
-
駅
常磐線土浦駅
5613m(71分)
-
スーパー
スーパータイヨー 土浦店
5702m(72分)
-
市役所・区役所
土浦市役所
5832m(73分)
-
公園
霞ヶ浦総合公園
8086m(102分)
近隣の物件
ラフィナート・パレB
5.25万円
2,200円
1LDK(46.03㎡)
お気軽にお問い合わせください
アパートマンション館株式会社 龍ヶ崎店
0297-60-7100
平日9:30~18:30 土日祭10:00~19:00
(休:水曜日)